image

RODINNÉ DOMY V ÚNĚŠOVĚ - ETAPA II

V rámci druhé etapy vznikly v Úněšově dva rodinné domy o dispozici 5+kk, které nabízejí velkorysý prostor pro každodenní rodinný život. Návrh klade důraz na funkčnost, přehledné uspořádání a plynulý přechod mezi interiérem a zahradou.

Dominantou domu je otevřený obytný prostor propojující kuchyň, jídelnu a obývací část, orientovaný tak, aby maximálně využíval denní světlo. Rozšířená dispozice přináší dostatek soukromí pro každého člena rodiny i flexibilitu do budoucna. Pozemky o výměře přes 1 000 m² poskytují klid, odstup a přirozený kontakt s okolní krajinou.

Architektonické řešení zůstává věrné nadčasové jednoduchosti, kvalitním materiálům a moderním technologiím. Etapa II navazuje na postupný rozvoj lokality a potvrzuje směr, kterým se v Úněšově vydáváme – stavět domy, které dávají smysl dnes i v dlouhodobém horizontu.



DOMY

image

    • Velikost pozemku: 1091 m2

    • Dispozice: 5+kk

    • Užitná plocha: 138m2

    • Zastavěná plocha: 173 m2

    • Energetická třída: A

    • Parkování: dvě park. místa

    • Stav: ve výstavbě

    • Dostupnost: dostupné

image

    • Velikost pozemku: 1230 m2

    • Dispozice: 5+kk

    • Užitná plocha: 138 m2

    • Zastavěná plocha: 173 m2

    • Energetická třída: A

    • Parkování: dvě park. místa

    • Stav: ve výstavbě

    • Dostupnost: dostupné


GALERIE


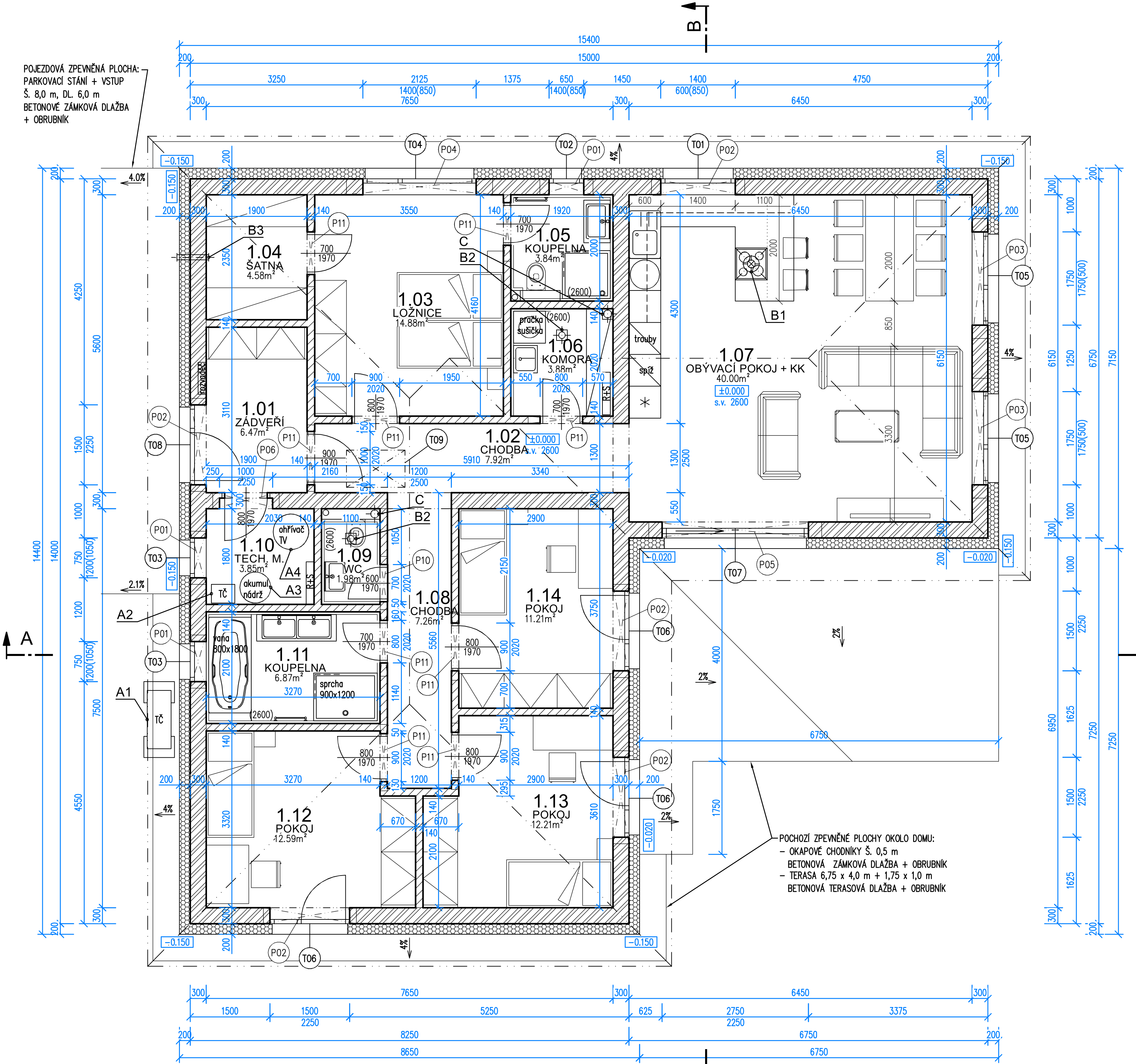
PŮDORYS


STANDARDY

Rodinný dům bude realizován z kvalitních pálených cihel Hörl & Hartmann. Obvodový plášť bude zateplen grafitovým polystyrenem s finální fasádní omítkou Weber, která zajistí dlouhodobou odolnost i nadčasový vzhled.

Valbová střecha s vazníkovým krovem bude osazena krytinou Terran. Tepelný komfort domu podpoří foukaná izolace, která přispěje k energetické efektivitě a stabilnímu vnitřnímu klimatu během celého roku.

Kompozitní okna s trojskly a vstupní dveře dodá společnost DAFE-PLAST. Ve všech obytných místnostech budou instalovány předokenní žaluzie Climax s možností dálkového ovládání prostřednictvím mobilní aplikace.

Vytápění a ohřev teplé vody zabezpečí tepelné čerpadlo vzduch–voda Vaillant, napojené na podlahové vytápění REHAU a akumulační nádrž Dražice. Každá místnost bude mít  vlastní regulaci, systém navíc umožní dálkové řízení a monitoring.

Koupelny a toalety budou obloženy velkoformátovými obklady (120 × 60 cm) a dlažbou (60 × 60 cm) s precizním provedením kamenických rohů. Stejný formát dlažby bude použit také v zádveří a technické místnosti, čímž bude zachována vizuální kontinuita. Sanita a zařizovací předměty budou kombinovat výrobky značek Laufen, Grohe, SAT, Ravak a Geberit.

Podlahová krytina v obytných místnostech bude tvořena odolným klikacím vinylem PURELLO, vhodným pro podlahové vytápění a každodenní provoz rodinného domu.


LOKALITA

image

Úněšov je obec, kde má den přirozené tempo. Klidná a bezpečná atmosféra, dostatek prostoru a přirozené sousedské prostředí vytvářejí místo, kde se dobře žije i vychovává rodina. Vše potřebné pro každodenní život je na dosah a zároveň zde zůstává pocit odstupu od ruchu větších měst.

Mateřská škola, obchod, restaurace i základní služby tvoří funkční zázemí obce. Pravidelné autobusové spojení zajišťuje pohodlný kontakt s Plzní, aniž by bylo nutné vzdát se venkovského klidu. Okolní krajina je tvořena lesy, loukami a cyklostezkami – ideálním prostředím pro procházky, sport i víkendový odpočinek s rodinou.

Díky výborné dopravní dostupnosti je Plzeň vzdálena přibližně 15 minut jízdy, Nýřany 10 minut a Kralovice 12 minut. Úněšov tak nabízí kombinaci, která je dnes vzácná – skutečný klid a prostor, aniž by člověk ztratil kontakt s pracovním i společenským životem regionu.

Je to místo, kde se večer vracíte domů s pocitem, že jste opravdu pryč od ruchu – a přesto zůstáváte všemu důležitému blízko.


ČASOVÁ OSA

Q4/2025
PROJEKT A PŘÍPRAVA

Vzniká architektonický návrh a projektová dokumentace, řeší se technické detaily i inženýring. Vyřizuje se stavební povolení. Z konceptu se stává konkrétní plán.

Q2/2026
HRUBÁ STAVBA

Realizují se základy, nosné konstrukce, stropy a střecha. Po osazení oken se dům uzavírá a získává svůj definitivní tvar. Tato fáze je klíčová pro kvalitu a dlouhodobou životnost celé stavby.

Q3/2026
INSTALACE A DOKONČENÍ

Probíhají rozvody technologií, montáž vytápění a příprava povrchů. Následují omítky, podlahy, obklady, sanita a fasáda. Dům získává finální podobu a začíná být připraven na každodenní život.

Q4/2026
KOLAUDACE A PŘEDÁNÍ

Provádějí se revize, kontroly a administrativní kroky vedoucí ke kolaudaci. Ladí se poslední detaily a úklidové práce. Po jejich dokončení je dům připraven k předání novým majitelům a k nastěhování.


KONTAKT

MÁTE DOTAZ? NAPIŠTE NÁM!


KDE NÁS NAJDETE

ADRESA
Tylova 473/27
301 00 Plzeň

 EMAIL
obchod@mddevelopment.cz

TELEFON
+420 604 633 476